Porto is a city that thrives on rhythm—its streets,its movement, its dense layering of history and urban life. But as the city grows, the pressure of constant accessibility and digital overstimulation increases. It offers a counterpoint: a space of controlled disconnection, where architecture becomes an active tool for slowing down and engaging with the self. A Necessary Pause; The spaces introduces a spatial refuge in a city shaped by movement, giving visitors a structured retreat from digital dependency.
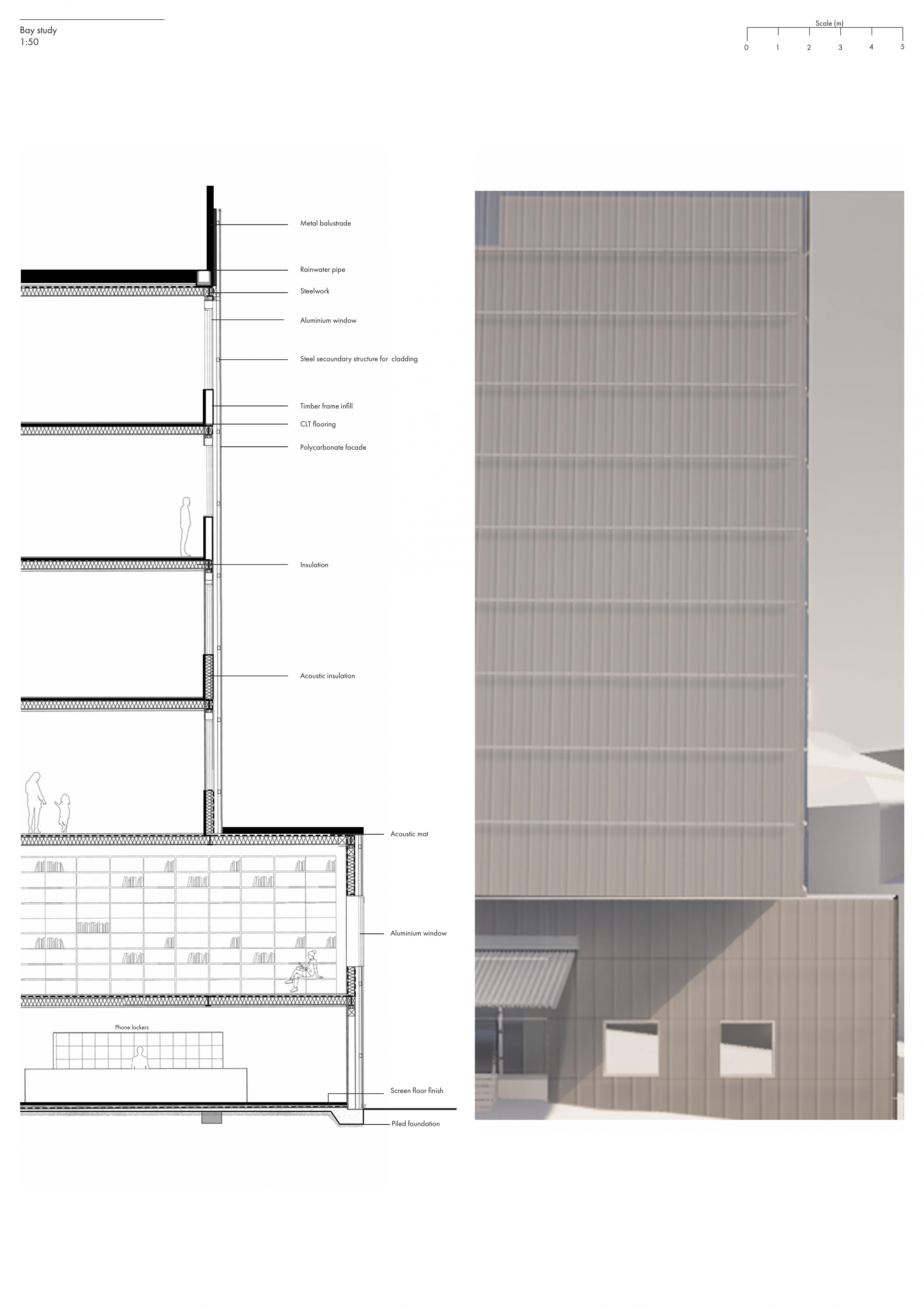
Porto is a city of thresholds between light and shadow, permanence and impermanence, land and water. The structured is designed as an extension of these contrasts, embedding itself into the city’s spatial and material language.
PAUSE is an architectural response to the overstimulation of modern life. A space to experience a sequence of volumes designed to slow time, mute external noise, and heighten the senses. It is not about isolation but recalibration. It challenges the idea of constant connectivity by offering a structured spatial withdrawal, where architecture guides visitors through controlled thresholds of stillness, shadow, and material tactility.






