“Designing a Clubhouse for Disabled Women Veterans”
Thesis exploring how interior design enhances well-being for disabled ex-army women veterans using therapeutic and inclusive design.
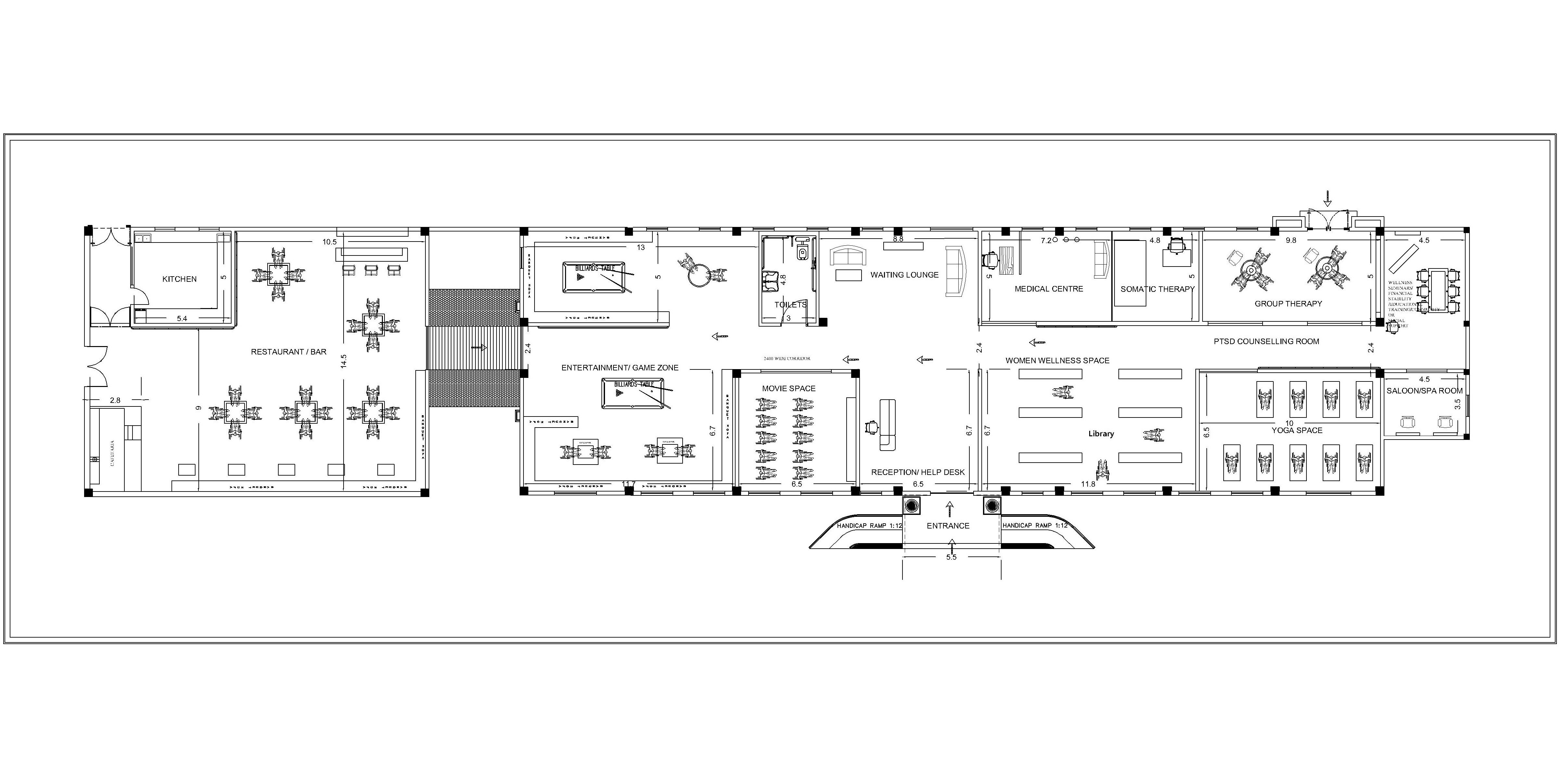
Functional layout with accessible, therapeutic spaces including wellness rooms, game zones, therapy areas, and social lounges designed for disabled women veterans.
Hyderabad-based site plan with an inclusive entrance and thoughtful landscaping, designed for comfort and accessibility.





